車載ソーラーシステムハウス







車載型ソーラーシステムハウスの特徴
移動可能な車載型ソーラーシステムハウス
車載型ソーラーシステムハウスは、必要な場所に2tワイドトラックに搭載した状態で利用できる、小回りのきく2坪サイズのハウスです。
車載型ソーラーシステムハウスは、必要な場所に2tワイドトラックに搭載した状態で利用できる、小回りのきく2坪サイズのハウスです。
ソーラーシステムハウスの利点を生かしたインターネットを利用できます。・緊急災害時に商用電源が寸断され、電源が確保できない場合でもソーラーシステムハウスの各システムを構成する機器はソーラーシステムの蓄電池から電源供給されるため、システムの停止を防ぐことが可能です。(各システムは停止せず稼働いたします)
・ソーラーシステムハウスの災害時でも電源確保ができる強みを生かしつつ、インターネット回線に接続できます。
ハウスを円滑に運用する為に、バッテリー電圧・発電量・消費電力を監視できます。・インターネットを用いた測定データの一元管理・閲覧をすることで、各地域に設置されたソーラーシステムハウスの状況を把握し運用する事ができます。
・ハウス内の消費電力、バッテリー残量等や作動状況、発電量を遠隔監視する事ができます。
・GPS機能により設置された位置を捉える事ができます。
※インターネット回線は、提供キャリアによって品質担保がされるため、災害時には利用できない場合があります。
カメラの録画品質(解像度、フレームレート)によっては、通信帯域が増大し、想定した品質を確保できない場合があります。
電気工事不要で設置後すぐに使用可能、安全・迅速のシンプルハウス



機能・設備

表示器(液晶画面)
5.7インチカラー液晶を搭載。
バッテリー残容量が20%と5%の時にそれぞれメッセージでお知らせします。
電気使用量節約の為、全ての電源をOFFにすることができます。
蓄電量(%)、発電(kW)、消費(kW)を表示。
5.7インチカラー液晶を搭載。
バッテリー残容量が20%と5%の時にそれぞれメッセージでお知らせします。
電気使用量節約の為、全ての電源をOFFにすることができます。
蓄電量(%)、発電(kW)、消費(kW)を表示。

インターネット環境
画面の表示を外部のPCで見る事ができます。
画面の表示を外部のPCで見る事ができます。
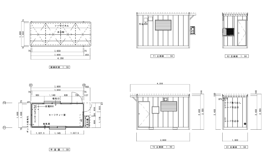
ハウス仕様
| 外寸法 | W=3,800× D=1,800× H=2,680(ソーラーパネル含む) |
| 面 積 | 6.6u |
| 重 量 | 1,500kg(ソーラーパネル含む) |
| 断 熱 | グラスウール |
| 建 具 | 鋼製ドア 2箇所 |
| 設 備 | エアコン、LED照明、換気扇、換気口、ブレーカー、壁コンセント、ブラインド、LEDサインパネル、LAN接続用モジュラージャック |
電気仕様
| ソーラーパネル 最大出力 |
1.44kW |
| 1日あたりの 平均発電量予想 |
4.3kWh前後(夏)/2.5kWh前後(冬) |
| 蓄電池種類 | シールドバッテリー) |
| 環境温度 | −10〜45℃ (結露なきこと) |
| AC出力 | 単相100V 30A |
| 出力波形 | 正弦波 |
図面

オプション
外壁材(オプション)
【金属サイディング】赤サビ・塗膜変褪色10年保証のPanasonicフッ素焼付塗装を使用。
※製品の細かな仕様は変更となる場合があります。
【金属サイディング】赤サビ・塗膜変褪色10年保証のPanasonicフッ素焼付塗装を使用。
※製品の細かな仕様は変更となる場合があります。



